Address
304 North Cardinal St.
Dorchester Center, MA 02124
Work Hours
Monday to Friday: 7AM - 7PM
Weekend: 10AM - 5PM
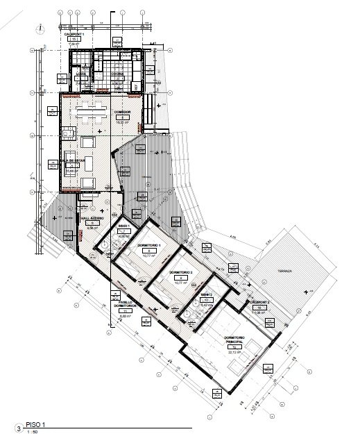
Este proyecto se concibe desde una lectura sensible del territorio y su topografía, desarrollándose como una vivienda de un solo piso de 135 m², donde la arquitectura se adapta y se desplaza de manera natural junto a las cotas del terreno, evitando imposiciones formales y privilegiando una relación armónica con el paisaje.
La organización espacial se estructura a partir de una clara división entre el sector público y el sector privado, lo que permite un funcionamiento eficiente y una adecuada jerarquía de los espacios. El sector público, compuesto por hall de acceso, estar y comedor, se plantea como un espacio continuo y fluido, orientado completamente hacia las vistas del sector norte del terreno, maximizando la entrada de luz natural y la conexión visual con el entorno. La cocina, integrada funcionalmente a este ámbito, refuerza la idea de un espacio social activo y luminoso, complementado por una logia estratégicamente ubicada para resolver de manera eficiente las labores de servicio sin interferir en las áreas principales.
El sector privado alberga dos dormitorios secundarios, dos baños y el dormitorio principal, todos dispuestos de manera que mantengan privacidad, pero siempre vinculados visualmente al exterior. Cada recinto se orienta hacia las mejores vistas y se relaciona directamente con el patio central, elemento clave del proyecto. Este patio actúa como un verdadero corazón de la vivienda, abrazado por la arquitectura, entregando iluminación natural, ventilación cruzada y una escala más íntima a los espacios interiores.
Formalmente, el proyecto se construye a partir de quiebres volumétricos y desplazamientos, generando una arquitectura que se “mueve” con el terreno, evitando soluciones rígidas y permitiendo que cada espacio encuentre su posición óptima según orientación, vistas y asoleamiento. Esta estrategia no solo enriquece la experiencia espacial, sino que también mejora el comportamiento ambiental de la vivienda.
En síntesis, esta casa de un piso, desarrollada para el propietario Miguel Arrate, propone una forma de habitar contemporánea y coherente con su entorno, donde la espacialidad, la luz y el paisaje se integran en una arquitectura clara, funcional y sensible, demostrando que en un solo nivel es posible lograr riqueza espacial, eficiencia y una profunda conexión con el lugar







