CASA FERNANDOIS

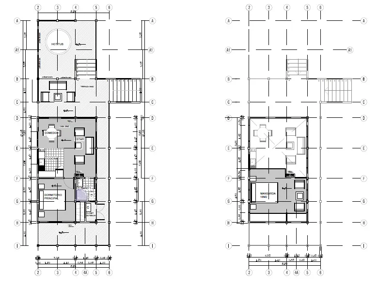
El proyecto se concibe como una vivienda compacta de 60 m², donde la simplicidad formal y la eficiencia espacial definen el carácter de la propuesta. La casa se estructura bajo una cubierta a dos aguas continua, de extremo a extremo, que no solo unifica la imagen arquitectónica, sino que se transforma en el elemento principal que ordena el espacio y protege el habitar.

La orientación juega un rol fundamental en el diseño. La vivienda se abre hacia el norte, incorporando ventanales que permiten el ingreso generoso de luz natural y potencian las vistas, mientras que hacia el sur se disponen ventanas más pequeñas, optimizando el comportamiento térmico y reduciendo pérdidas energéticas. Esta estrategia refuerza una lógica de arquitectura pasiva, asegurando confort durante todo el año.

La prolongación de la cubierta genera un gran alero, que protege el área exterior destinada a quincho y hot tub, permitiendo su uso incluso en invierno y fortaleciendo la relación entre interior y exterior. Este espacio cubierto amplía la superficie útil de la vivienda y transforma el exterior en una extensión natural del estar.

El programa se organiza de manera eficiente, contemplando en el primer nivel un estar–comedor–cocina integrados en un solo ambiente, junto a un dormitorio y un baño, resueltos con criterios de optimización espacial. Sobre este nivel, la mansarda se destina a dormitorio adicional, aprovechando la volumetría de la cubierta y generando una atmósfera acogedora y funcional.

En síntesis, esta casa de 60 m² demuestra que una arquitectura contenida puede ofrecer confort, carácter y conexión con el entorno, donde la cubierta, la orientación y el diseño eficiente permiten maximizar cada metro cuadrado, integrando interior y exterior en una propuesta simple, cálida y bien pensada.

“Pequeña en tamaño, grande en experiencia.”