Dirección
Bombero Ossa 1010 oficina 206
Horario de Trabajo
Lunes a Viernes 9 am - 5 pm
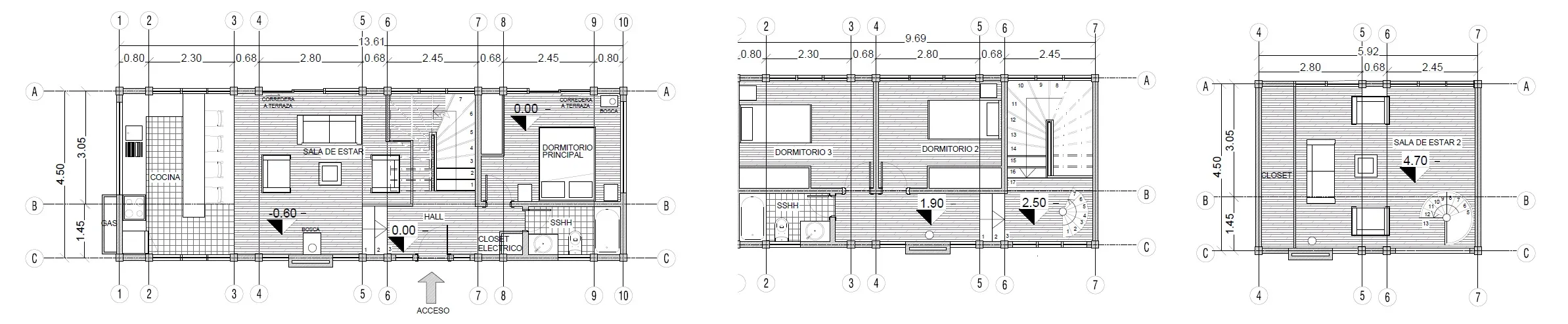
El proyecto se concibe como una vivienda de 150 m² desarrollada en dos pisos más una gran mansarda, donde el diseño arquitectónico prioriza de manera consciente la orientación norte y la aplicación de criterios de arquitectura pasiva, con el objetivo de generar condiciones térmicas óptimas y un alto nivel de confort interior durante todo el año.
La casa se implanta de forma estratégica, abriendo sus mayores vanos y vistas hacia el sector norte, aprovechando al máximo el asoleamiento y las visuales, mientras que hacia el sur se disponen vanos más controlados y de menor tamaño, reduciendo pérdidas térmicas y reforzando el comportamiento energético de la vivienda. Esta decisión proyectual permite un equilibrio entre eficiencia, iluminación natural y relación con el entorno.
Formalmente, la arquitectura se expresa a través de una cubierta a dos aguas desplazada, que otorga carácter e identidad al proyecto, junto con pilares robustos que definen la estructura y transmiten una sensación de solidez y permanencia. Estos elementos constructivos no solo cumplen un rol estructural, sino que también se integran al lenguaje arquitectónico de la vivienda, reforzando su presencia y coherencia formal.
El programa arquitectónico se organiza de manera clara y funcional. En el primer piso, se desarrolla un gran espacio integrado de estar, comedor y cocina, concebido como el corazón social de la casa, ampliamente iluminado y vinculado visualmente al exterior. En este mismo nivel se ubica el dormitorio principal en suite, con su baño privado, garantizando comodidad y privacidad. La escalera, de carácter robusto, se transforma en un elemento protagónico, marcando el eje vertical y la jerarquía espacial de la vivienda.
El segundo piso alberga dos dormitorios y un baño, configurando un área más íntima y familiar. Finalmente, en el tercer nivel, la mansarda se proyecta como una sala de estar con vistas panorámicas, convirtiéndose en un espacio privilegiado de contemplación y uso flexible, estrechamente vinculado al paisaje.
En síntesis, esta vivienda se plantea como una arquitectura coherente, eficiente y expresiva, donde la orientación, la forma y la estructura trabajan de manera conjunta para ofrecer una casa luminosa, térmicamente confortable y profundamente conectada con su entorno, integrando diseño, funcionalidad y paisaje en una propuesta arquitectónica clara y contemporánea.







