CASA PAULINA

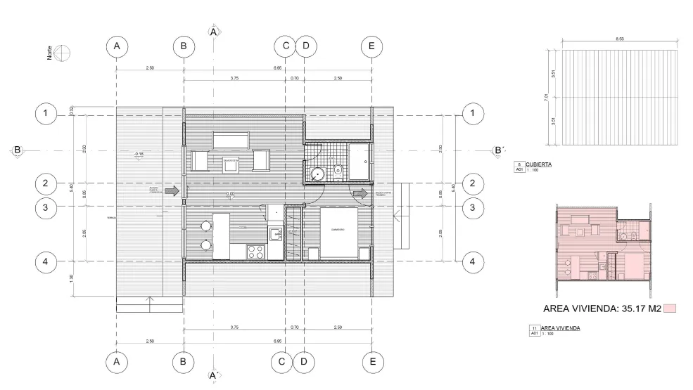
El proyecto se concibe como una vivienda compacta de 35 m², donde la optimización del espacio y la eficiencia constructiva son los principios fundamentales del diseño. La propuesta demuestra que, a través de una planificación inteligente, es posible lograr una vivienda funcional, confortable y plenamente conectada con su entorno natural, incluso en una superficie reducida.

El programa se organiza en un primer nivel de planta integrada, donde estar, comedor y cocina se desarrollan en un solo recinto continuo, potenciando la amplitud visual y la flexibilidad de uso. En este mismo nivel se incorpora un baño completo y un dormitorio, resueltos con criterios de máxima eficiencia espacial y correcta distribución.

En el segundo nivel, la mansarda amplía las posibilidades del proyecto, generando un espacio adicional que puede destinarse a dormitorio o estar íntimo. Desde este nivel se potencian las vistas tanto hacia el norte como hacia el sur, permitiendo contemplar la belleza del paisaje en todas sus direcciones y reforzando la sensación de apertura hacia la naturaleza.

La arquitectura equilibra esta apertura visual con un diseño que garantiza confort térmico y constructivo en todo momento, mediante una adecuada orientación, control de vanos y soluciones constructivas eficientes. La envolvente se plantea con criterios de buen desempeño energético, asegurando protección frente a las condiciones climáticas sin sacrificar iluminación ni relación con el entorno.

En síntesis, esta vivienda de 35 m² se presenta como un ejercicio de síntesis arquitectónica, donde cada metro cuadrado cumple un rol preciso, integrando funcionalidad, vistas privilegiadas y eficiencia constructiva en una propuesta pequeña en escala, pero amplia en experiencia de habitar.

“Cada metro cuenta, cada vista importa.”